Die Arbeit des Carportplaners beginnt mit der Recherche des Projekts und endet mit der Abnahme des Carports. Ein Carport nach Maß stellt besondere Anforderungen an den Carportplaner und das Design-Team.

So wird Ihre Anfrage von Carportmaster bearbeitet
Sobald Ihre Anfrage bei Carportmaster eingegangen ist, kümmert sich ein Carportplaner um Ihr Anliegen. Meist sind es Fragen, ob eine Idee technisch umzusetzen ist und was der Carport nach Maß denn kosten wird. Die Bearbeitung Ihrer Anfrage folgt einem zielführenden Ablaufschema.
- Eingang der Anfrage bei Carportmaster per E-Mail oder telefonisch
- Telefonanruf des Planers, um Details zum Projekt zu recherchieren
- Telefonische Beratung über technische und ästhetische Lösungen
- Übernahme der Informationen in eine Bauzeichnung
- Zusendung des Bauzeichnung per E-Mail zur Prüfung. Anpassungen werden bis zu einer finalen Version der Bauzeichnung vorgenommen
- Auf Basis der finalen Bauzeichnung wird eine Preiskalkulation durchgeführt
- Auf Basis der Kalkulation erstellen wir für Sie ein Preisangebot
Für das erste Telefongespräch werden, je nach Umfang des Projekts, 15 – 30 Minuten für die Beratung und Vorbereitung der Bauzeichnung benötigt.
Es sollte sichergestellt sein, dass dieses Gespräch ohne Störungen stattfinden kann. Das Gespräch während des „Gassigehens“ kann nicht wirklich zielführend verlaufen.
Je genauer Sie über Ihr Projekt informieren, desto besser und schneller wird Ihre Anfrage bearbeitet. Vorzugsweise können Sie gern bei Carportmaster zu einer Ihnen passenden Zeit anrufen.
Themen des Beratungs- und Recherchegesprächs
Diese Themen werden die Planer behandeln. Darauf sollte man so gut wie möglich vorbereitet sein. Die Auflistung soll dabei helfen, entsprechende Informationen zur Hand zu haben.
- Baugenehmigung
Ist bereits eine Baugenehmigung für Ihren Stahlcarport erteilt worden, oder muss diese beantragt werden. Eine fehlende oder abgelaufene Baugenehmigung setzt die weitere Planung so lange aus, bis eine Recherche beim Bauamt oder antragstellenden Ingenieur ergab, das das Projekt generell genehmigungsfähig ist. - Budget
Höhe der zur Verfügung stehenden Investitionssumme für den Carport. Ein absolutes K.-o.-KriÂteÂriÂum für die weitere Planung, falls ganz offensichtlich das geplante Budget selbst für eine kostenoptimierte Lösung nicht ausreichend sein wird. - Recherche über die zu planende Carport-Konfiguration
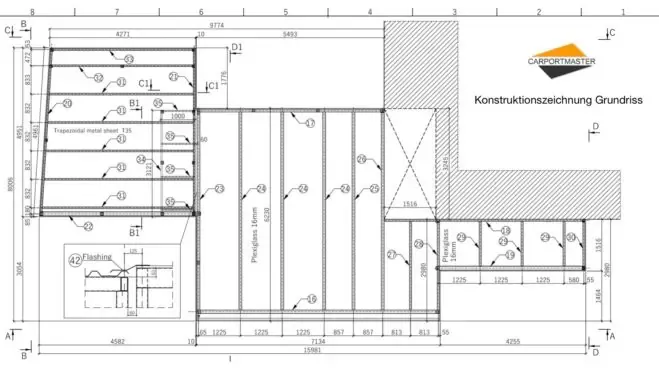
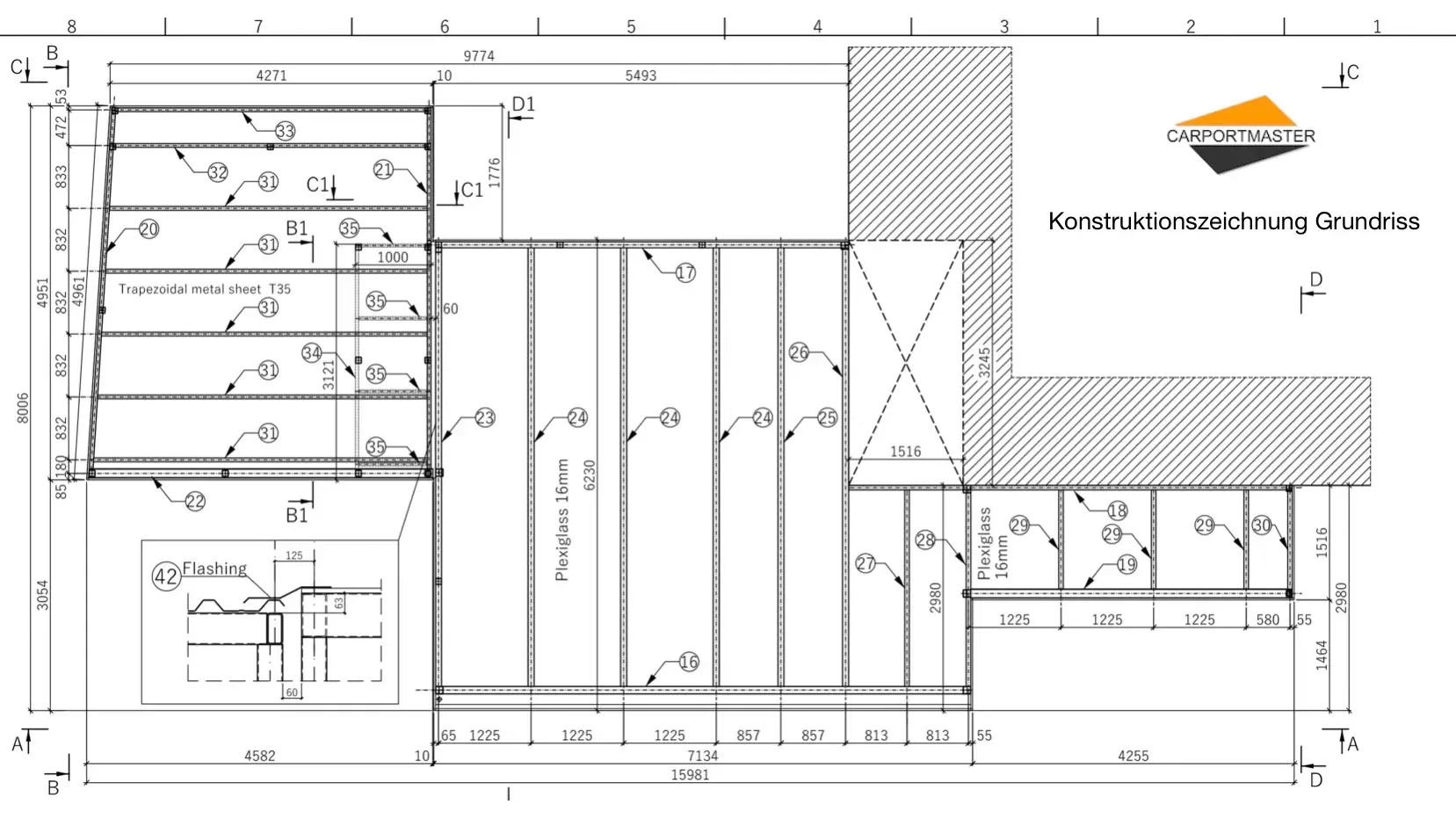
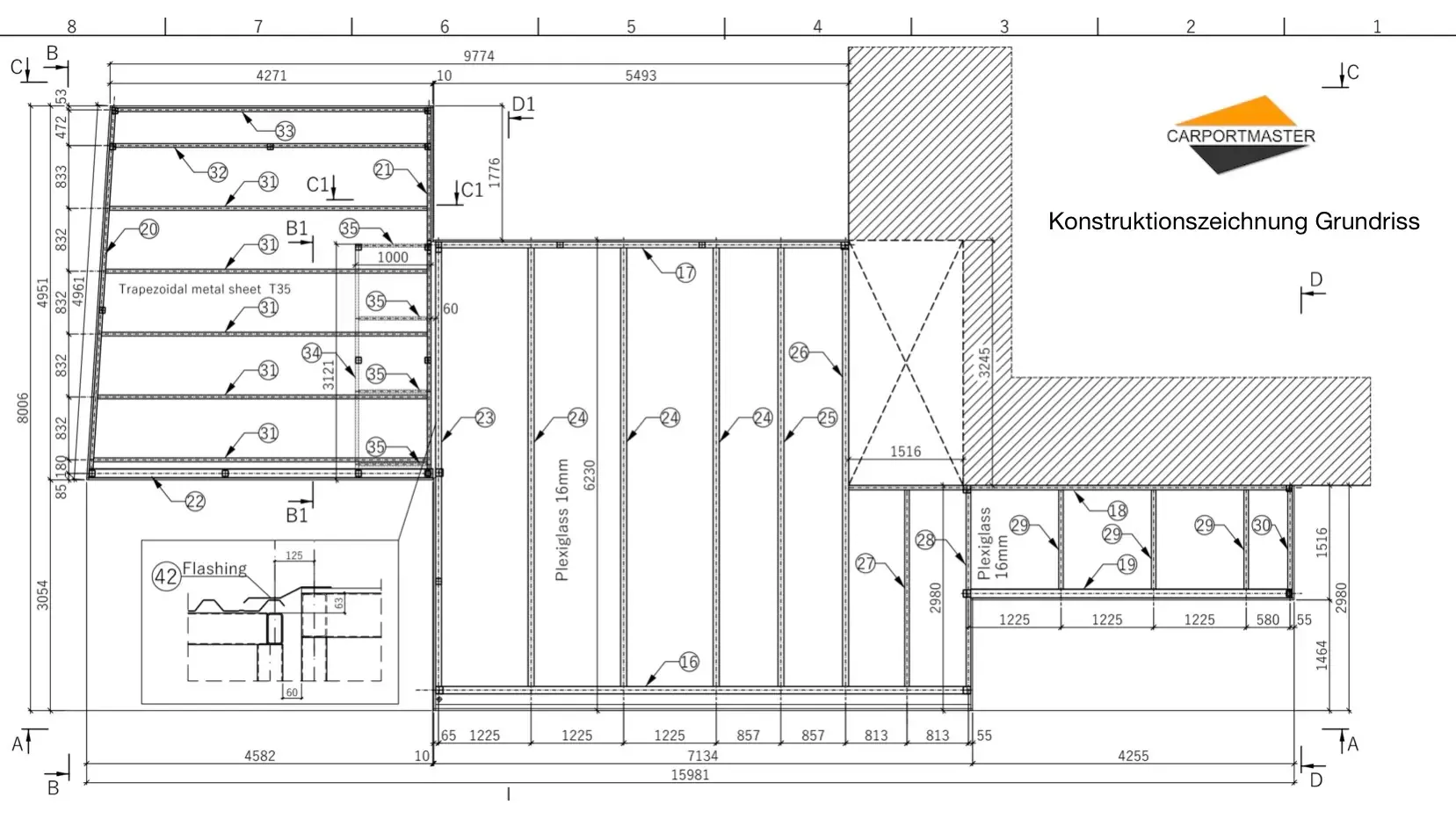
Sie erhalten ein Bauzeichnung zur Visualisierung und als Basis für eine Preiskalkulation
Nach Klärung der Fragen zur Baugenehmigung, Carport-Konfiguration und zum Budget erstellt der Carportplaner eine bauzeichnung des Carports für Sie.
Alle recherchierten und vorliegenden Informationen werden in dieser Bauzeichnung dokumentiert, der Grundriss und alle Seitenansichten im Maßstab 1:100 gezeichnet.

Die Bauzeichnung wird Grundlage für die Preiskalkulation des Carports und das Angebot sein.
Alle relevanten Basisinformationen für die Erstellung der Bauzeichnung werden Punkt für Punkt vom Planer während eines Beratungsgesprächs ermittelt. Dabei ergeben sich meist Fragen, die im weiteren Planungsverlauf geklärt werden müssen.
Basisinformationen für die Erstellung der Bauzeichnung
Der Planer hat zu Beginn wortwörtlich ein unbeschriebenes Blatt vor sich. Er nutzt vorgefertigte, hinterlegte Piktogramme von Elementen für die Carport-Konfiguration, die nun auf der Planungsunterlage platziert und beschrieben werden.
- Anschrift des Kunden
- Telefonnummer des Kunden (für schnelle Kommunikation am besten Mobiltelefonnummer)
- Revisionsnummer der Bauzeichnung (aufsteigend mit jeder Änderung und Neufassung der Bauzeichnung)
- Anschrift der Baustelle (Wichtig für die Ermittlung von herrschenden anzunehmenden Lasten)
- Schnee-, Wind- oder Erdbebenlasten (Relevant für die Statik, wird vom Planer ermittelt)
- Gewünschte Carportfarbe
- Bedachung des Carports (Material Dachdeckung, Dachform, Entwässerung, Dachbegrünung)
- Carportverkleidungen
- Türen & Tore
- Besonderheiten zum Projekt (Vorgaben des Bauamts etc.)
Zeichnung: Abmessungen und Positionen von benachbarten Gebäuden
Zur ersten Preisfindung sind ungefähre Maße ausreichend.
Grundriss
- Ansicht A = Carport Maß Einfahrtsbreite
- Ansicht B = Carport Maß linke Seite
- Ansicht C = Carport Maß Rückseite
- Ansicht D = Carport Maß rechte Seite
- Ansichten A1, B1 etc. = Maß Zwischenwände
- Lage angrenzender Gebäude, Baugrenzen
- Position für die Entwässerung (Fallrohr)
Seitenansichten
- Höhe = Gesamthöhe des Carports
- Lichte Höhe = Abstand von der Oberkante des Bodens bis zur Unterkante der Dachverblendung (Attika)
- Wohnhaus Position
- Wohnhaus, im Carportbereich vorhandene Fallrohre und Einbauten an der Wand (Be,-Entlüftung, Temperaturfühler)
- Höhen und Positionen von angrenzenden Garagen, Schuppen etc.
- Abstand zu Grundstücksgrenzen / benachbarte Gebäude
- Wandverkleidungen / Material für Verkleidungen
- Türen / Toren / Ausführung
- Dachrinnen und Fallrohre (evtl. zum Anschluss an vorhandene Systeme)
- Gefälle des Grundstücks
- Vorhandener oder geplanter Bodenbelag
- Zustand des Erdreichs, Positionen von Versorgungsleitungen, Drainagen, Zisternen etc.
- Position / Ausführung von vorhandenen Mauern, L-Steinen, Mauerscheiben)

Ihre Mitarbeit ist bei der Planung Ihres Carports gefragt
Die Carportplaner verfolgen das gleiche Ziel wie Sie. Seien Sie versichert, dass bei einer Zusammenarbeit mit Carportmaster vorrangig Ihre Interessen umgesetzt werden und nicht die eines auf Provisionsbasis agierenden Vertreters. Dessen Ziel ist es wohl eher, seine Standards auf Biegen und Brechen „beim Kunden unterzubringen“, um einen Auftrag mit nach Hause zu bringen.
Bei der Zusammenarbeit gibt es für den Kunden, trotz aller Annehmlichkeiten durch die umfangreichen Serviceleistungen von Carportmaster, dennoch einige Punkte, zu deren Erledigung die Mithilfe gefordert ist. Das betrifft nicht nur Entscheidungen, die während der Planung zu treffen sind, sondern von Beginn an das Übermitteln von relevanten, die Planung des Carports betreffende, Informationen.
Die Qualität dieser Informationen wird mitentscheidend für ein gutes Gelingen des Carportprojekts sein. Es hilft zum Beispiel nicht, ein hohes Budget vorzugeben, dessen Finanzierbarkeit nicht gesichert ist. Auflagen oder Einschränkungen in Bezug auf die optional einzuholende Baugenehmigung für den Carport zu verschweigen, ist ebenso nicht zielführend und kann die gesamte Planung ad absurdum führen.
Ziel der Projektplanung
Viele Kunden benötigen bei der Planung eines Carports nach Maß eine ehrliche Beratung und kompetente Hilfe. Schlicht ausgedrückt: Jemand, der sich in dem Metier sehr gut auskennt, soll sich um alles kümmern und alle Aufgaben im Sinne des Kunden verantwortlich erledigen.
Das Ziel der Projektplanung ist die Lieferung und Montage eines Carports aus Stahl in Maßanfertigung, das den Wünschen und Ansprüchen der Kunden perfekt entspricht. Ein geplantes Budget, die technische Umsetzbarkeit und Einhaltung rechtlicher Vorgaben setzen dabei den Rahmen für diese Planung.
Bei Anbietern von Standardmodellen ist die Planung weitaus weniger aufwändig als für Carportmaster mit seinen individuellen Möglichkeiten. Aber diese Individualität, einen Carport vollkommen frei gestalten zu können, generiert erhebliche Vorteile für den Bauherrn.
Speziell dann, wenn die Situation der Baustelle keine andere Möglichkeit lässt, als sich den Gegebenheiten planerisch zu unterwerfen. Die Vorteile eines Stahlcarports in Maßanfertigung können in diesen Fällen voll ausgespielt werden.
Ihre Baupläne, Fotos und Skizzen beschleunigen die Bearbeitung
Die Übermittlung Ihres Bauplans, Fotos oder einer von Ihnen angefertigte Skizze wird die Bearbeitungszeit für die Recherche erheblich verkürzen und ist daher sehr willkommen. Planungsunterlagen von Mitbewerbern werden generell nicht genutzt. Das Planungsteam von Carportmaster verlässt sich ausschließlich auf die eigene Recherche und die Informationen von beteiligten Kompetenzpartnern.
Das Planungsteam von Carportmaster ist telefonisch unter 02171 – 766 66 48 oder durch Nutzung des Kontaktformulars zu erreichen. Alle Anfragen werden chronologisch und unter Berücksichtigung der Dringlichkeit bearbeitet. Bei einem hohen Volumen von Anfragen kann es leider zu Wartezeiten kommen.
Die übermittelten Daten an Carportmaster werden erfasst, um sie für die Bearbeitung zu nutzen. Weitere Informationen, wie mit Daten von Kunden umgegangen wird, sind in unseren Datenschutzrichtlinien dokumentiert.



